

CINEMATÉKA U MILOSRDNÝCH
ATELIÉR HLAVÁČEK-SCHLEGER-LIESLER / BAKALÁŘSKÁ PRÁCE / 2015-2016 / FA ČVUT
Kino, galerie a kavárna. To vše se nachází v cinematéce, navrhované v místech, kde se potkává Staré Město v Praze se zásahem 20. století v podobě asnace. Křižovatku ulic U Milosrdných a Kozí
v Praze doplňuje cinematéka, která vás v samém nitru přenese do světa filmové fantazie. Kinosál je jediným opravdu hmotným objektem v celém tomto domě. Kolem kinosálu se můžete vydat
po galerii v původním i moderním slova smyslu. Tvoří ji dlouhá rampa, vedoucí kolem kinosálu, která je osvětlená z jedné strany. Zde si cestou budete moci prohlédnout vystavovaná umělecká
díla. Kdo dosáhne cíle cesty, objeví se v kavárně v nejvyšším podlaží, kde si může dát lahodnou kávu. Pro milovníky Prahy je otevřená střešní terasa, kde je také možno posedět a kochat se
krásami města.








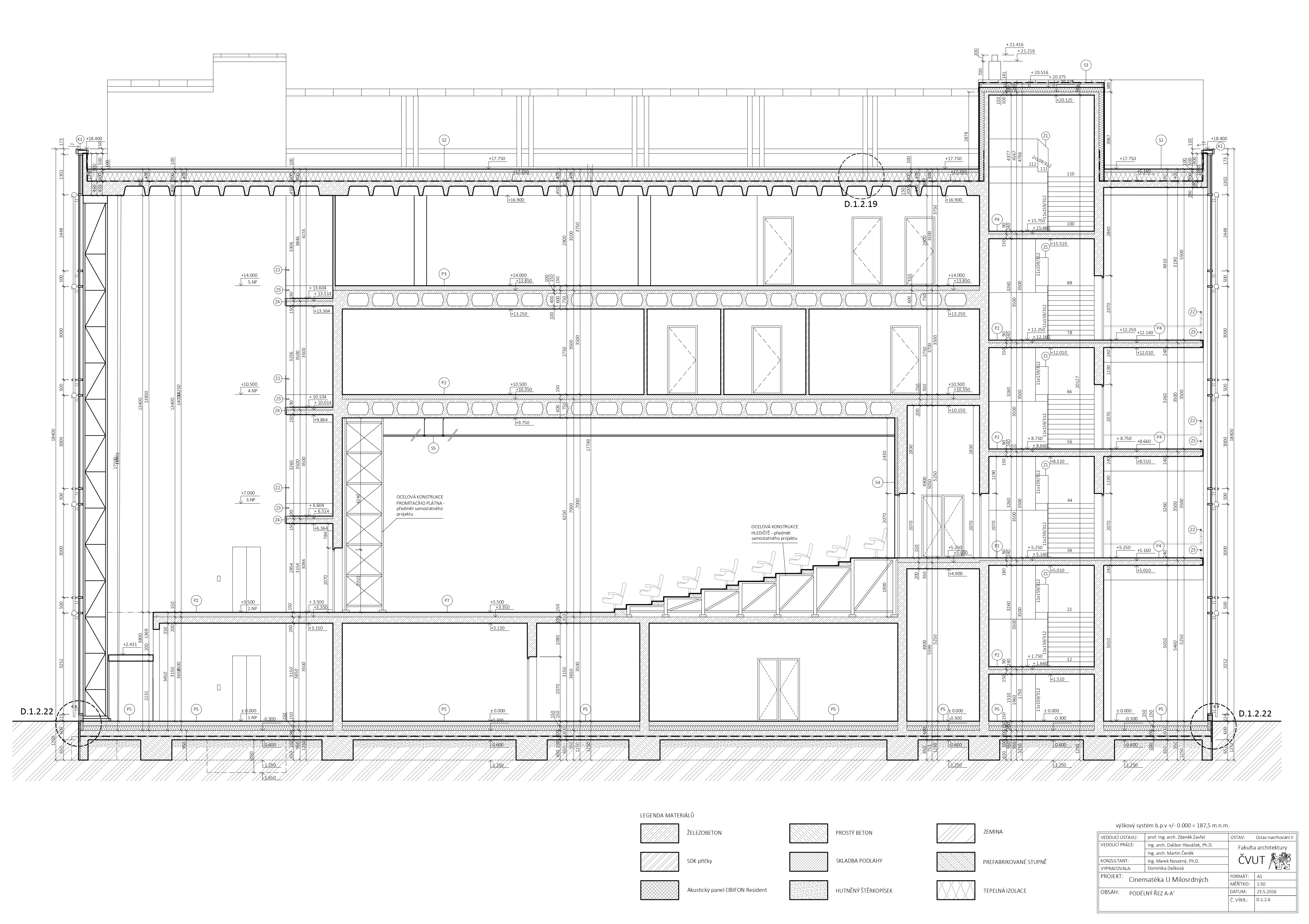
Součástí bakalářské práce bylo zhotovení technických výkresů na úrovni prováděcí dokumentace. Na řezu je jasně patrno, že středem domu je kinosál a cinematéka sama je od exteriéru oddělena pouze lehkým obvodovým pláštěm.

